空间设计:经济而不局促居室(图)
无忧装饰建材网 www.51zsjc.com 2007-6-4 来源: 易居网 评论 0 条
什么是精巧小户型,比较一致的认为:一居室60平方米、二居室80平方米、三居室100平方米。以上仅指单卫,如果变成双卫,再增加一些功能空间,将面积放宽10-20平方米。小户型面积虽小,但居住功能和大户型相比,不应该有太大的差异,这就要求精致地规划面积,巧妙地设计户型,其面积的取舍点要正好卡在既保证功能又最经济,尽量减少浪费,即,经济而不局促。 户型点评 户型1:一室一厅一卫,建筑面积54.25平方米,使用率77.24%。
户型概说:整个户型接近方形,各功能空间在其中分割。因两面窗户面积较大,加上户门穿插其间,稳定的空间极为有限, 功能布局:厨、卫、起居、卧室各占一角,交通线主要集中在户型中部。卧室部分有两个采光窗,可以将右上部分处理成学习空间。 居住尺度:16.43平方米的起居室由于多面开门,缺乏足够完整连贯的墙面,摆放家具不很方便。从均好性上讲,厨卫面积比例稍大,使起居室有些局促,建议将卧室门改成斜角门,同时开放厨房,贴左侧放置一餐桌,形成DK开放式餐厨区。 户型2:一室二厅一卫,建筑面积55.39平方米,使用率82%。
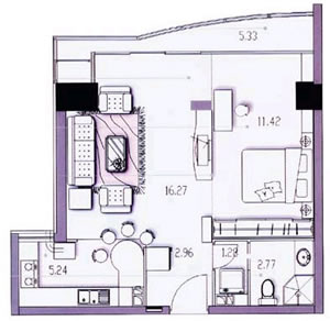
户型概说:该户型6.9米左右的开间,很容易分割出3米的卧室和3.9米的起居室,使用起来极为方便。因面积所限,厨房为开放式,厨具和餐桌连成一体,配以宽大的全景落地玻璃幕墙,充满着时尚亮点。 功能布局:开放加封闭的内外双阳台,不仅增加居室采光,使空气便于流通,而且能够延展人们的视觉空间和心理空间,使用起来方便而实用。洗浴和洗涤分离,细化了清洁功能,或者将洗衣机和洗手台对调,形成洁污分区,也是一种不错的选择。 居住尺度:整个户型的均好性不错,特别是卧室和起居室的开间,适合居住习惯,建议增加一道隔墙,分隔两个空间,确保使用独立。宽大的玻璃幕墙,在寒冷的冬季或炎热的夏季,保温是个大问题。 户型3:一室二厅一卫,建筑面积58.97平方米,使用率78.99%。
户型概说:户型比较规整,没有拐角,户内交通都消化在客厅的一侧,面积利用率较高,因而起居室可以大到占用了户型有效面积的一半,宽敞而实用。 功能布局:双阳台的设置,使这款户型具备了较高的舒适度:客厅 推拉门 外的开放式阳台,在寸土寸金的小户型中,通风和观景显得精巧、细致;而厨房的小阳台,既是通风通道,又是晾晒空间,满足了日常生活的需要。 居住尺度:卧室左侧衣柜的设计,恰到好处地减弱了居室的狭长感,但2.7米的开间,放上双人床,过道有些局促。厨房的“L”形布局,使用方便,但采光口略小,角度也不理想,操作时既遮挡光线,又影响通风。 户型4:一室二厅一卫,建筑面积61.25平方米,使用率84.73%。
户型概说:整个户型的均好性不太令人满意,卧室偏小,门厅偏大,使得总面积并不算太小的户型,感到有些局促。 功能布局:该户型厨卫的功能分区较为细致:卫生间外放置洗衣机的部位,在解决了交通通道的同时,分出了洗涤区;厨房的拐角处放置了冰箱,使本来有些凌乱的空间,变得整齐、得体。客厅中缺少常见的阳台,但宽大的角窗,一定程度上弥补了这一不足。 居住尺度:该户型位于连体塔楼东部偏南,因而获得了一居室中不易多得的阳光,只是处于楼体夹角部位,易产生互视,私密性稍差。门厅处形成的小4关,迎面留出了大面积墙面,为住户提供了极好的装饰天地,但也因处于交通枢纽,不好摆放家具,空间有些浪费。 专家提示
一居室一直是小户型的代表,也是市场追捧的热点,在很多楼盘中往往位置并不算好,但因总价较低而最先售磬。除去市场上为缩小面积而将厅室合一的“合体一居”(居室除厨卫外,只拥有一个窗户或阳台的采光面)外,标准的一居室应为一室一厅,即卧室和起居室各有窗户和阳台,这样才能保证居住的品质。一居室的精巧性在于:小面积仍要满足多功能,除去基本的就餐、洗浴、就寝和会客外,在寸土寸金的面积中,适时增加读书、休闲等功能,达到“麻雀虽小,五脏俱全”。 |
- 样板间:钟情六款居室门(图) 2004/6/18
- 简单易做黑白珠帘 创造别具魅力的对比空间(图) 2004/6/24
- 浅色滑动门唱“主角”(图) 2004/8/19
- 令你的房子与众不同的五种居室门窗(图) 2004/8/28
- 居室窗玻璃贴膜渐成时尚 2004/5/28






