简洁流畅 美化家居空间(图)
无忧装饰建材网 www.51zsjc.com 2004-6-29 来源: 新浪房产 评论 0 条
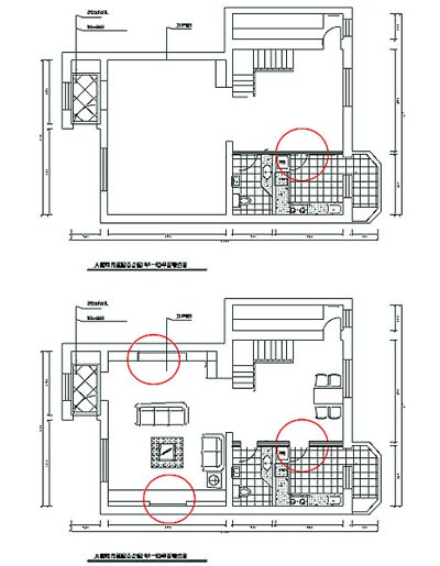
![]() 改进说明: 这是大雄城市花园·百合园的一套180平方米复式结构的居室。该户型的空间通透,功能分区比较明确,一楼是会客、就餐区,二楼是起居室和卧室。但是,一楼的采光不佳,为了解决这个问题,设计师匠心独运地将厨房的实体墙拆除,换成落地玻璃,既避免了开放式厨房油烟的污染,又增加了屋子的通透感。同时,设计师在客厅做了两个背景墙,很好地体现了呼应关系。 ![]()
设计师通过材质、色彩、刚与柔的对比,用直 线条 来勾勒客厅。用金属板自然缝隙来配合壁挂式的电视,左右两侧结合原有的暖气,塑造立体背景墙。通透钢化玻璃的地台下,散布着白色的鹅卵石和五彩的海滩沙,使人感觉远离都市的喧嚣,折射出主人回归自然的心境。 ![]()
一条优美的弧线把客厅和过道巧妙地划分,同时起到了很好的引导作用。主题墙用淡黄色、银灰色、浅粉色做块状分割,与电视背景墙相呼应,同时设计师跳脱平面手法设计,令人感到一种流畅的氛围。 ![]()
由于该室的顶部管道较多,设计师巧妙地用吊顶的穿插来弥补不足。镜面与木质相结合,拓展了视觉空间。同时,设计师大胆地利用橘红色凸显个性,配以简洁流线造型的家具,勾勒出一份颇为宁静而雅致的休憩空间。 东易日盛公司总部精品部孙晋设计 |
- 家居风情屋:将浪漫挂到窗帘上(图) 2004/6/23
- 秋日家居“变身”计划--窗帘篇(图) 2004/6/23
- 简单易做黑白珠帘 创造别具魅力的对比空间(图) 2004/6/24
- 软装饰为家居添灵秀 布艺窗帘成时尚新宠 2004/6/28
- 窗饰成为家居装饰重头戏 让灵动充满空间(图) 2004/5/28




